
The next level of building
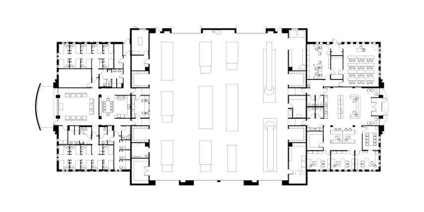
Size: 21,000 sq. Ft. New Construction
Scope: Architectural Services 100%
Location: Evergreen Park, IL
We offer comprehensive design services and resources that
facilitate a seamless and optimized building process
for our clients.
We offer comprehensive design services and resources that facilitate a seamless and optimized building process for our clients.